This type of grille is used in supply and exhaust ventilation and air conditioning systems, designed for outdoor installation in air ducts or building openings in premises of various types and purposes.
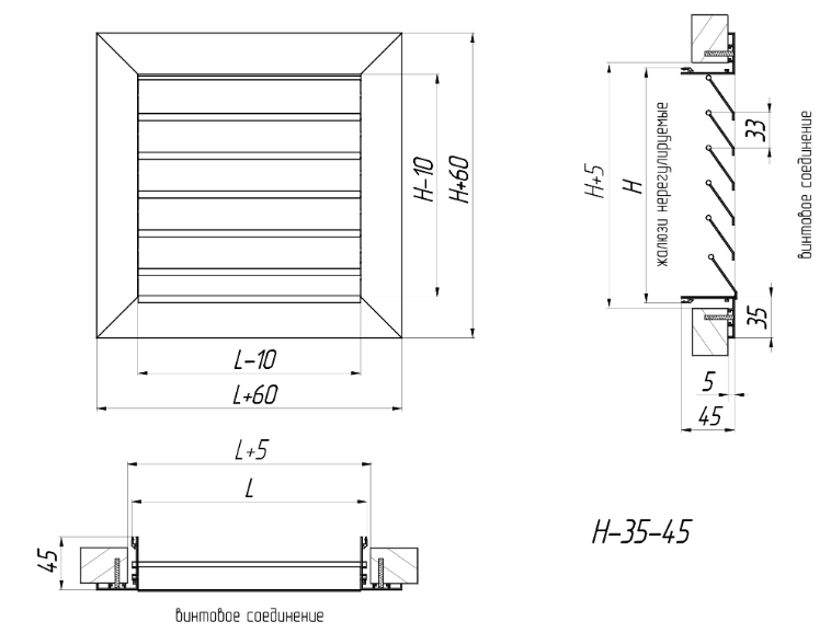
External air intake grilles are made of aluminium profiles in the form of a frame and louvers that are horizontally positioned and fixed at an angle of 45° with a step of 35mm. It has a protective mesh to prevent birds, rodents, leaves, etc. from entering the ventilation duct. The grille is installed using screws from the inside of the grille, to the edge of the building opening.
The advantage is the reliability and, at the same time, the invisibility of the screws. The profiles are coated with heat-resistant powder paint, which provides reliable protection against negative environmental factors and prevents premature product wear.
The standard color of painting is white, but at the customer request it is possible to paint in another color according to the RAL catalogue.

Fitting sizes LxH with 5mm steps.
For size L> 500mm, a dividing profile is used.
H-35-45 (RAL-9016) 400x300h - without fastening, fastened with screws to the end of the construction hole, white.
H-35-45 * (RAL-9016) 400x300h - fastening by means of screw connection (mounting openings are located on the front side of a lattice frame), white color.
- delivery with the adapter for connection to an air duct is possible
- delivery with a damper of manual or mechanical adjustment (+ DR or + DM) is possible